EXAMPLE STEEL DETAILING CAD DRAWINGS

Click on a drawing to reveal a large version. Drawing examples include General Arrangement Drawings, Steel Fabrication Drawings, Steel Part Drawings and 3D views of everything from structural steel to stairs.

3D VIEWS & GENERAL ARRANGEMENT CAD DRAWINGS

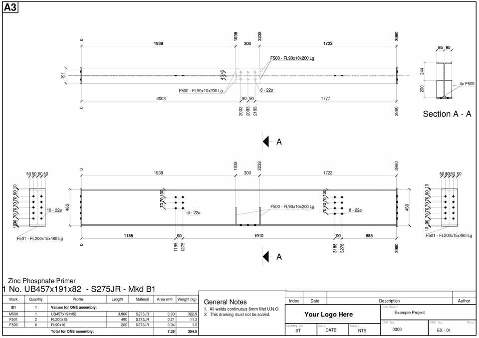
STEEL FABRICATION CAD DRAWINGS

© 2025 Steel Detailing UK | Architectural & Structural Steel Detailing in the UK | Contact Us